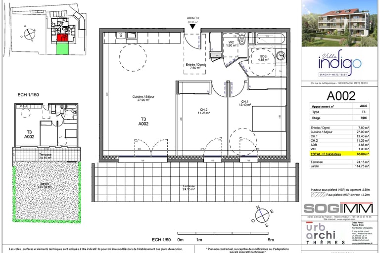
Appartement 3 pièces + cuisine
au rez de chaussé
Adresse:
234 rue de la République, 74330 EPAGNY METZ-TESSY
Surface : 66,80 m²
Terrasse: 24,15 m²
Jardin : 100 m² environ
Composition:
Une cuisine équipée: Rangements, plaque à induction, four, hotte, réfrigérateur.
Ouverte sur salon/salle à manger avec accès sur la terrasse et jardin.
Deux chambres avec placard, donnant sur la terrasse.
Salle de bain avec douche.
Wc séparé.
Annexes:
Une terrasse de 24,15 m².
Un box en sous-sol sécurisé, de 15,35 m²
Une cave en sous-sol sécurisé de 4,60 m².
Équipements:
Fibre optique.
Intercom vidéo.
Entrée sécurisée par Vigik.
Eau chaude sanitaire par cumulus à gaz.
Chauffage individuel à gaz, par radiateur
Loyer:
1200€ par mois, charges comprises, hors abonnements.
Ceux-ci, eau, gaz, électricité, communications, sont à souscrire par le locataire.














































Adresse:
234 rue de la République
74330 EPAGNY METZ-TESSY
Coordonnées
Email: LCDM74@Outlook.com
Siret: 432 914 513 00036