Appartement 2 pièces + cuisine
au 1er étage
Adresse:
15 impasse de la Moraine, 74330 EPAGNY METZ-TESSY
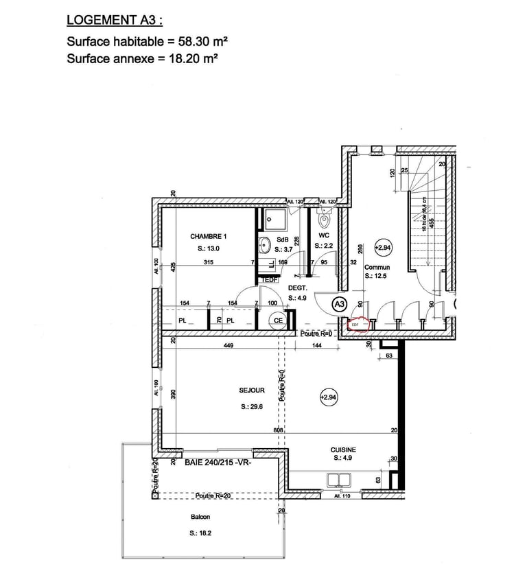
Surface : 58,30 m²
Terrasse: 18,2 m²
Composition:
Une cuisine équipée: Rangements, plaque à induction, four, hotte, réfrigérateur.
Ouverte sur salon/salle à manger avec accès sur la terrasse.
Une chambres de 13 m² avec placard.
Salle de bain avec douche.
Wc séparé.
Annexes:
Une terrasse de 18,2 m².
Un garage de 18 m², avec électricité et deux mezzanines.
2 places parking.
Équipements:
Fibre optique.
Eau chaude sanitaire par cumulus électrique.
Chauffage au sol par infracable.
Loyer:
930€ par mois, charges comprises, hors abonnements.
Ceux-ci, eau, électricité, communications, sont à souscrire par le locataire.


Adresse:
15 et 49 impasse de la Moraine
74330 EPAGNY METZ-TESSY
Coordonnées
Email: LCDM74@Outlook.com
Siret: 432 914 513 00036


